Listed by Stephen Peacock and Nicholas Maclure of Derby Office

Listing Sold by Lisa Hampton Real Estate

43 Abenaki DriveNewport City, VT 05855Sale Price: $650,000

  • Sale Price: $650,000
  • 82 Days Since Sale
$
$
%
$/month over payments
Federal 30-year interest rate: 6.22% last updated on Nov 6, 2025
* All Figures are estimates. Check with your bank or proposed mortgage company for actual interest rates.
This product uses the FRED® API but is not endorsed or certified by the Federal Reserve Bank of St. Louis.
  • $650,000Sale Price
  • 3Bedrooms
  • 3Bathrooms
  • 0.51Acreage
  • 2,192Square Feet
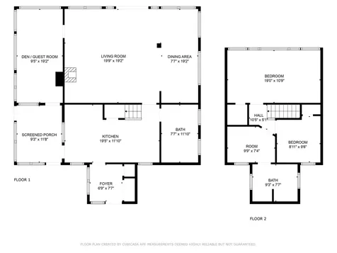
Welcome to 43 Abenaki Drive, where you'll experience a feast for the eyes with this lovely property on Lake Memphemagog. The incredible views can be seen from many vantage points outside, as well as inside the 1 1/2 story home. With 144 feet of water frontage & a private dock, it's easy to set out for a day of boating or fishing, or jump in for quick swim. Inside, the house offers more than 1,600 square feet of living space, with a large, open living & dining area, which features a woodstove, built-ins & sliders to the composite deck, where you can soak in sun & views. Off the living area is a guest bedroom or den. The kitchen is well-equipped with stainless appliances, plenty of cabinets & lots of counter space. Completing this level is a 3/4 bath with washer/dryer, mudroom & an enclosed porch. Upstairs you'll find a stunning primary bedroom with vaulted ceiling, exposed beams & a wall of windows, so you don't have to get out of bed to enjoy lake views. A guest room, full bath & office/flex space are also on this level. Rooftop solar substantially reduces your utility costs. Steps away from the house is a detached 2-bay garage with additional living space overhead including a living area, sleeping quarters & 3/4 bath. All of this is set on a .51-acre fenced lot at the end of the road; tucked away, yet just minutes from shopping, dining & many other amenities in the Newport/Derby area. Spring is here & summer isn't far behind-make the most of this wonderful waterfront home.
Broker Reciprocity 

Copyright 2025 PrimeMLS, Inc. All rights reserved. This information is deemed reliable, but not guaranteed. The data relating to real estate displayed on this display comes in part from the IDX Program of PrimeMLS. The information being provided is for consumers’ personal, non-commercial use and may not be used for any purpose other than to identify prospective properties consumers may be interested in purchasing. Data last updated November 9, 2025 10:37 PM EST

 

Hi there! How can we help you?

Contact us using the form below or give us a call.

Send Us A Message:

I agree to receive marketing and customer service calls and text messages from Century 21 Farm & Forest. To opt out, you can reply 'stop' at any time or click the unsubscribe link in the emails. Consent is not a condition of purchase. Msg/data rates may apply. Msg frequency varies. Privacy Policy.

Do not fill in this field:

This site is protected by reCAPTCHA and the Google Privacy Policy and Terms of Service apply.