Listed by Lipkin Audette Team of Coldwell Banker Hickok and Boardman (Phone: 802-846-8800)

2334 Pumpkin Village RoadFairfield, VT 05455Price: $909,000

  • Price: $909,000
  • Est. Mortgage of $/month
  • 182 Days on Market
$
$
%
$/month over payments
Federal 30-year interest rate: 6.37% last updated on Apr 9, 2026
* All Figures are estimates. Check with your bank or proposed mortgage company for actual interest rates.
This product uses the FRED® API but is not endorsed or certified by the Federal Reserve Bank of St. Louis.
  • $909,000List Price
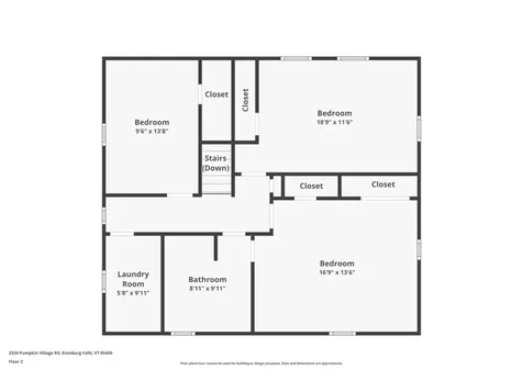
  • 3Bedrooms
  • 2Bathrooms
  • 122.76Acreage
  • 1,568Square Feet
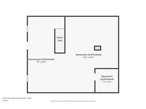
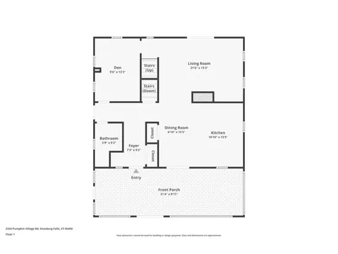
Set on 122+ private acres of fields and sugarbush, this property offers the best of Vermont country living. Enrolled in the state's Current Use program to help offset taxes and promote healthy forest growth, the land features an established trail leading into a productive sugarbush with approximately 2,500 maple taps and plenty of potential for expansion. There's room for horses or farm animals, plus four outbuildings including a sugarhouse (sugaring equipment negotiable), a large garage with oversized door, five-bay storage building, spacious shed with chicken coop, and a greenhouse. The three-bedroom, two-bath country cape offers hardwood floors, spacious rooms, and a big eat-in kitchen with stainless steel gas stove. A first-floor flex room could serve as a fourth bedroom or office, while the walkout basement includes a workshop area. Enjoy outdoor living with an enclosed screened porch, deck, and covered porch with access to the above-ground pool. Additional highlights include a Generac generator and a peaceful setting just 15 minutes to Enosburg, and 30 minutes to St. Albans and I-89.
Broker Reciprocity 

Copyright 2026 PrimeMLS, Inc. All rights reserved. This information is deemed reliable, but not guaranteed. The data relating to real estate displayed on this display comes in part from the IDX Program of PrimeMLS. The information being provided is for consumers’ personal, non-commercial use and may not be used for any purpose other than to identify prospective properties consumers may be interested in purchasing. Data last updated April 16, 2026 6:37 AM EDT

 

Hi there! How can we help you?

Contact us using the form below or give us a call.

Send Us A Message:

I agree to receive marketing and customer service calls and text messages from Century 21 Farm & Forest. To opt out, you can reply 'stop' at any time or click the unsubscribe link in the emails. Consent is not a condition of purchase. Msg/data rates may apply. Msg frequency varies. Privacy Policy.

Do not fill in this field:

This site is protected by reCAPTCHA and the Google Privacy Policy and Terms of Service apply.